Подготовка грифа и стойки
После создания блинов переходят к подготовке грифа. Правильно выполнить работу поможет пошаговая инструкция:
- По обеим сторонам грифа необходимо сделать одинаковые отступы, соответствующие толщине дисков.
- На стержне нужно сделать выступы, которые не дадут блинам упасть. При помощи сварочного аппарата следует наплавить толстый шов по всей окружности грифа.
Стойку можно сделать из металлических трубок или брусьев, надежно забетонированных в почву. В первую очередь уточняют высоту, удобную для фиксации самодельной штанги. В отмеченных зонах проделывают симметричные отверстия, вставляют болты, затягивают гайками.
Металлическая или деревянная стойка используется для надежной фиксации штанги, именно по этой причине болты должны быть довольно длинными. На их концы накручивают несколько гаек с широкими шайбами, что исключит случайное падение снаряда. Если конструкция используется в уличных условиях, все крепежи и соединения обрабатывают лакокрасочными составами для защиты от коррозии.
Разные скамейки
Самая простая, но и замечательно прочная спортивная лавка-«ипполитовка» может быть изготовлена по чертежу на рис; настил – прочная доска от 40 мм. С ней хорошо знакомы те, кто проходил в армии курс молодого бойца; по крайней мере, в прошлые времена. «Духи»-горожане скоро начинали смотреть на ипполитовку с изумлением и опаской: сколько, оказывается, всяких упражнений можно на ней проделывать! И она же отлично входит в состав 4-опорного тренажера.

На след. рис. – наклонная скамья для пресса. Такую, ввиду ее компактности и пользы, не помешает завести отдельную, если места в жилище достаточно. Вследствие отсутствия прямых углов материал послабее – профтруба 40х40. Упоры для ног – пруток 10 мм с резьбой на концах, обрезиненный до нужного размера. Резиновые муфты съемные: нижний упор регулируемый, а верхний убирается, если необходимо делать упражнения, при которых он мешает.

Далее на рис. – компактная силовая скамья со стойками для штанги. Упражнения на ней делают в основном сидя.Можно также качать пресс, глубоко прогибая спину. В таком случае упорами ног будет поперечная балка А, и тогда ее нужно обтянуть чем-то мягким или надеть резиновую муфту. Материалы – профтруба 40х40, а держатели штанги из стальной полосы толщиной от 6 мм.

Следующий образец – атлетическая скамья уже для крепких ребят, уверенно управляющихся со штангой веса, равного их собственному, т. наз. парта Скотта. Материалы, соответственно – профтруба 60х60х2,5 и 50х50х2. Держатели грифа из такой же полосы, как и в пред. случае; сиденье и столик из фанеры от 20 мм.

Несколько тренажеров
Как намертво связать скамью-«ипполитовку» со стойкой для штанги, превратив в достаточно компактный 4-опорный тренажер, показано слева на рис. Там же справа – размеры и конструкция скамейки-трансформера под ту же раму. Основной материал там и там – профтруба 40х60. О фиксаторах стоек с держателями штанги вспомним ниже.

На след. рис. – чертежи с материальной ведомостью простого 3-опорного стационарного нерегулируемого тренажера с горизонтальной скамьей. Он более подходит для частных домовладений с достаточной величиной полезной площади. Изюминка данной конструкции – соединение дальней ноги скамьи с ее несущей балкой звеном под 45 градусов. Благодаря оптимальному распределению эксплуатационных нагрузок удалось выполнить снаряд, на котором можно делать упражнения с весами более 100 кг, из профтрубы 50х50.

Наконец, далее на рис. – чертежи и спецификация элементов на полнофункциональный домашний тренажер со скамьей-трансформером для жима и пресса
Обратите внимание на узел, выделенный красным. Это – наиболее простой и надежный для исполнения в домашних условиях способ фиксации стоек штанги
Штыри-фиксаторы (диаметром от 12 мм) будут, конечно, понемногу изнашиваться, но их никогда не заклинит и не закусит.

Еще о штанге
Как уже сказано, не удержанная на весу штанга способна причинить тяжелые увечья, вплоть до фатального исхода. И направить ее гриф в держатели в таких случаях нереально. Зато реально – предусмотреть 2 отрезка цепи, надежно закрепленные на стойках штанги. На других концах цепей – карабины, их набрасывают на гриф. Длину цепных страховочных звеньев берут такой, чтобы, держа штангу на полностью вытянутых руках, цепи провисали, но гриф отпущенной штанги не доставал до груди. Чтобы карабины не сползали на грифе, их достаточно примотать скотчем. Вдруг штанга рухнет, скотч, конечно, не выдержит, оба карабина съедут на один конец грифа, но дело обойдется испугом и, возможно, побитым полом.
О деревянных атлетических скамьях
Со штангой на деревянных спортивных снарядах заниматься нельзя, их конструкция не выдержит. Зато в ситуациях, возникающих вследствие неловкости тренирующегося, дерево «отдает» по телу куда менее чувствительнее, чем металл. Поэтому деревянными скамейками для жима и пресса предпочтительно пользоваться начинающим и несовершеннолетним. Кроме того, деревянные спортивные скамьи и тренажеры можно соорудить на даче или в загородном доме из остатков стройматериалов.

Конструкция наклонной деревянной скамьи для пресса и спецификация к ней показаны на рис., а на след. рис. – чертежи деревянного тренажера с наклоняемой скамьей и рычагом для упражнений ногами с грузом. Чтобы дерево держало эксплуатационные нагрузки, применена блочная система подвешивания грузов: они висят на нисходящих ветвях троса А. Поперечные балки Б – стальные обрезиненные.

О размерах
Здесь на рис. даны размеры 3-опорных тренажеров для людей среднего роста. Слева – полнофункциональный со съемной партой, ручными и ножными рычагами. Основные материалы – профтруба 60х40х2 и круглая 30х2; упор для подъема доски – труба 20х2. Доска – фанера 16 мм с обшивкой, как описано далее.

Справа – простой компактный. Высота скамьи над полом подбирается индивидуально, по мерке от плотно стоящей на полу пятки до внутреннего сгиба коленного сустава. Основные материалы как и в пред случае; регулируемая задняя ножка позволяет трансформировать снаряд для упражнений сидя. Но помните: штангу с этого тренажера нужно брать только с подхода!
Подготовка чертежа
Размеры скамьи должны соответствовать индивидуальным требованиям. Для этого можно воспользоваться стандартными параметрами:
- длина опор составляет 97–122 см;
- расстояние между стойками — 52 см;
- высота передней части лавки — 83 см, задней — 34 см;
- параметры подставки под задние опоры — 30 см, под передние — 22 см.
Длина лежака регулируемой конструкции в задней части достигает 16 см, в передней — 94 см. Наклонная скамья для жима имеет другие параметры: в задней части — 36 см, в передней — 114 см. Показатели ширины лавки зависят от комплекции спортсмена и площади помещения, в котором будет стоять тренажер. В среднем размеры достигают 29–32 см. Специалисты не рекомендуют использовать габариты меньше стандартных, поскольку это может негативно отразиться на деятельности мышечной системы, а значит, и на результате тренировки.
Чертежи можно составить самостоятельно либо найти готовые в открытом доступе. На эскизе должны отображаться все конструктивные особенности будущего изделия, размеры каждого элемента. При необходимости исходные параметры меняют в соответствии с индивидуальными требованиями. Спортсмены, которые ходят в тренажерный зал и занимаются на профессиональном оборудовании, смогут снять мерки и на их основе разработать собственную схему.
Ближе к делу, или Как сделать основание
На основание идет почти вся нагрузка. Оно должно быть очень крепким и устойчивым. Еще оно должно быть разборным, чтобы меньше занимало места в квартире. Итак, приступаем к изготовлению основания будущей стойки. Первым делом нужно разрезать металлический профиль на нужные по длине бруски. Основание – это та часть, в которую потом будут всаживать более мелкий (30 на 30) профиль, который и будет держать штангу. Оно будет выглядеть как большая буква «Т».
Сначала надо подготовить все инструменты. В основание понадобится два бруска длиной в 700 и 300 миллиметров. Для этого понадобится более толстый профиль (40 на 40). Два бруска нужно сварить той самой буквой «Т» так, чтобы от середины более длинного в обе стороны оставалось по 15 сантиметров. Именно такая конструкция обеспечит максимальную устойчивость. В 30-сантиметровом бруске просверливается отверстие для болта – он будет регулировать ширину.
Нужно отметить середину буквы «Т». Именно там следует приварить следующий брусок длиною в 850 миллиметров. Из этого бруска будет выезжать другой, на котором будет лежать гриф. Но под большим грузом брусок может погнуться, поэтому от основания до середины стойки нужно приварить дополнительный брусок длиной в 550 миллиметров. Он будет служить дополнительной опорой. Его приваривают под углом так, чтобы он соединил вертикальный и горизонтальный брусок. На конце вертикального нужно сделать отверстие под болт. Оно должно быть диаметром не меньше самого болта.

По такому же принципу изготовляется аналогичная конструкция.
Необходимые материалы и инструменты
В первую очередь нужно решить, из чего можно изготовить штангу. Наибольшей популярностью пользуется модель, состоящая из металлического стержня и круглых бетонных дисков. Для создания стойки подойдут обычные деревянные брусья либо уголки, закрепленные при помощи цементного раствора. Перед началом работ по производству самодельного спортивного снаряда необходимо подготовить следующие материалы и инструменты:
- трубку из нержавеющей стали диаметром не менее 25 мм;
- строительные материалы: песок, щебенку, цемент;
- куски плотной полиэтиленовой пленки;
- широкую форму для изготовления блинов — подойдут кастрюля или сковородка с высокими бортиками;
- краску любого понравившегося цвета, кисть;
- сварочный аппарат;
- болгарку;
- перфоратор;
- гаечный ключ;
- несколько болтов с подходящими по размерам шайбами и болтами.
Металлическая трубка будет играть роль грифа. Ее длину подбирают с учетом индивидуальных предпочтений, размера хвата. Стоит заранее продумать толщину и массу будущих дисков.
Трубка из нержавеющей стали диаметром не менее 25 ммЦементная смесьФорма для изготовления блиновСварочный аппаратБолгаркаПерфоратор
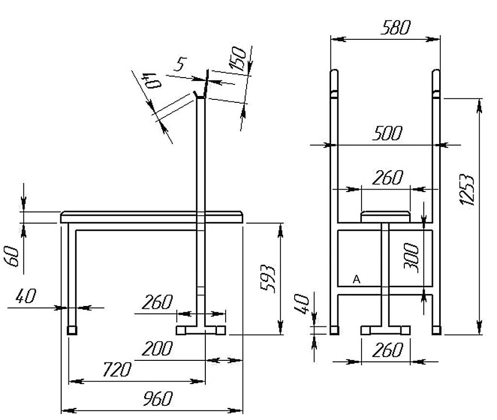
Самодельная скамья для жима лежа
Рис. 2. Чертеж самодельной скамьи для жима
На рисунке верхняя цифра обозначает номер детали в таблице, а нижняя – количество таких деталей. Конечно, крышки к трубам здесь далеко не самая необходимая часть и без них вполне можно обойтись.
На данную самодельную скамью необходимо приблизительно 3,2 м квадратной профильной стальной трубы – это самая дорогостоящая ее часть. Крепления, с помощью которых крепится доска, можно сделать более простыми (рис. 3).
Рис. 3. Упрощения крепления
Это упрощенное крепление нужно просто прикрепить через 2 средних отверстия к трубе, просверлив ее также перед этим соответственно. Теперь, перейдем к тому, как сделать самодельную стойку под штангу для жима лежа с регулируемой высотой (рис. 4).
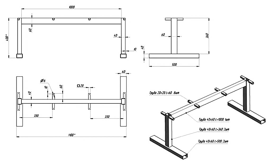
Рис. 4. Чертеж самодельной стойки для штанги
Здесь аналогично – верхняя цифра обозначает саму деталь, а нижняя ту, к которой она крепится. Что касается прямоугольных профильных труб, которые показаны на рисунке, то гораздо проще будет найти их с толщенной метала ровно 2 или 3 мм, чем 2,6. Желательно использовать 3 мм для надежности, разница в цене при этом будет примерно на 1 у.е. дороже за метр, но их нужно менее 1,5 м на обе самодельные стойки для штанги. Основная нагрузка будет все-таки припадать на квадратные трубы, и их таки стоит попытаться найти с толщиной метала больше 4 мм, хотя чаще встречаются с толщиной 3.
Отверстия для клинов можно просверлить согласно чертежу, приведенному ниже для каждой из труб (рис. 5 и 6).
Рис. 5. Отверстия в наружной трубеРис. 6. Отверстия во внутренней трубе
Как видите, во внешней трубе (40 х 40мм) делается всего 2 отверстия, а во внутренней – 8. Но их диаметр так же, как и расстояние между ними, уже не столь существенны
Здесь уже можно сделать и по-другому (меньше отверстий во внутренней трубе или больше диаметр), но важно, чтобы диаметр отверстий для надежности не был меньше того, который на чертеже. А если для упрощения фиксировать высоту стоек для штанги одним клином на каждой, то желательно, чтобы толщина отверстий, как и клинов, была минимум в 2 раза больше
В этом случае, естественно не обязательно, делать по 2 отверстия в наружных трубах.
Рис. 7. Чертеж клина
Клины, конечно для удобства можно сделать толще и по одному для каждой стойки, а не по 2, как на чертеже. Но если их делать с гвоздя, что наверное проще всего, то можно выбирать 200-тку. Будет и толщина 6 мм, как на чертеже и длины будет достаточно. Но в этом случае лучше, чтобы каждая самодельная стойка для штанги содержала по 2 таких клина. Если хотите использовать по одному, то подберите что-то потолще.
Что касается держателей, то можно их сделать как на чертеже (рис. 8). Но можно их для упрощения заменить рогачами сваренными из толстой стальной арматуры в виде букв «Y» или «U». Но при наличии листа, с которого можно вырезать, конечно, проще так и сделать.
Рис. 8. Чертеж держателя для штанги.
Как сделать саму штангу или более подробно узнать о всех остальных частях задействованных в этом варианте самодельной скамьи для жима и стоек для штанги можно узнать из вышеупомянутой статьи «Как сделать самодельную штангу и скамью для жима лежа». Где проще всего найти материалы и какие еще тренажеры стоит сделать для домашнего спортзала узнайте в статье «Как сделать тренажеры дома«
Виды тренажеров для пресса
Существует несколько разновидностей тренажеров для пресса.
В тренажерных залах обычно используются:
- Типовая скамья для пресса. Такая скамья может располагаться под разным углом. Больший угол наклона доски требует больших усилий, но при этом позволяет добиться внушительного результата. Подобная скамья считается самым дешевым вариантом и стоит в пределах двух тысяч рублей.
- Доски с регулируемым наклоном спинки. Прекрасный вариант для развития сразу нескольких групп мышц: живота, талии, ягодиц и спины. Средняя стоимость составляет около трех тысяч рублей.
- Скамьи с выгнутой спинкой. Тренировки с данной скамьей проходят с повышенным уровнем нагрузки. В основном такие тренажеры используют продвинутые атлеты, которые занимаются несколько лет.
- «Римские» скамейки для пресса. Считаются самым «продвинутым» видом тренажера. Позволяют накачать кубики живота с поднятыми ногами. При постоянных тренировках можно добиться красивого рельефа.
Скамья для пресса практически не имеет недостатков. Стоит учесть, что высоким людям крайне проблематично подобрать доску под индивидуальные параметры тела.
Преимущества использования скамейки
Купив или изготовив скамейку самостоятельно, можно приступать к первым активным тренировкам.
Достоинства использования скамьи для пресса:
- Возможность контролировать каждое свое движение.
- С помощью специального контроля можно увеличивать или уменьшать нагрузки, когда это потребуется.
- Выполнять упражнения на скамье с дополнительным весом намного безопаснее.
- Обычные тренировки становятся не только удобнее, но и в несколько раз продуктивнее.
- На скамье для жима и пресса можно выполнять намного больше типов физических упражнений.
Используя в арсенале оборудование такого типа, можно добиться прогресса достаточно быстро. Рельефный пресс и накачанное тело не заставит себя долго делать. С помощью скамьи можно выполнять намного больше упражнений, в том числе с гантелями и штангой.
Модификации конструкции
Скамейки для жима подразделяются на два вида: горизонтальные и регулируемые. Они отличаются как визуально, так и функционально. Горизонтальная скамья для жима лежа на четырех фиксированных опорах – самая простая базовая конструкция. Она подразумевает только лежачее положение пользователя во время тренировки. Такой спортивный инвентарь малофункционален и подходит в основном для проработки грудных мышц, а также фронтальных дельтовидных.
В конструкции с тремя опорами две стойки служат для установки различного снаряжения и лепестков для штанги. Чаще всего ее комплектуют таким спортоборудованием:
- блоком для ног – предназначен для выполнения упражнений на бедра, икры, ягодицы, а также на скручивания для работы пресса;
- дополнительными поручнями – позволят эффективно тренировать нижнюю часть пресса;
- выдвигаемыми стойками – дают возможность выполнения упражнений со штангой без дополнительной страховки.
- брусьями – для отжиманий.
Еще один вид спортивного снаряда для жимов лежа – регулируемая скамья. В ней лежак (спинка) может настраиваться по высоте. В комплектацию входят стойки с различными приспособлениями: скобами, стопорами, фиксаторами. Занятия на такой скамье можно проводить как сидя, так и лежа, используя снаряжение для гантелей и штанги. На этом тренажере можно выполнять жим под разными углами, прокачивая многие группы мышц. Такая регулируемая скамейка наиболее удобна для установки в квартире и не требует использования других тренажерных снарядов, так как выполняет много функций.

Горизонтальная на четырех фиксированных опорах

С тремя опорами

Регулируемая
Назначение и устройство
Штанга представляет собой спортивный снаряд, предназначенный для развития крупных мышц. Конструкция состоит из металлического стержня — грифа. На него надевают блины — диски разного веса. Благодаря рифленой накатке обеспечивается полноценный захват тренажера руками, без прокруток.
Один из важнейших элементов штанги — замок. Он представляет собой небольшой зажим цилиндрической формы, при помощи которого фиксируют блины на грифе. В результате дополнительные элементы не могут отсоединиться самостоятельно, предупреждая травмирование атлета.
По международным стандартам, оптимальная длина грифа штанги составляет 2,2 м, толщина — 2,8 см. Диаметр блинов обычно не превышает 45 см. Масса дисков варьируется в пределах 1–50 кг.
Использование штанги в домашних условиях позволяет развить мышечную систему, повысить выносливость. К другим преимуществам тренировок относятся:
- Универсальность. Занятия с этим спортивным снарядом оказывают воздействие на все группы мышц. По сравнению с тренажерами штанга обходится дешевле, занимает меньше места при хранении.
- Простота использования. Конструкция снаряда элементарна, а его применение понятно всем.
- Адаптивность. С ростом силы, развитием мышц достаточно увеличить вес блинов для дальнейшего прогресса.
- Повышение мощности. Упражнения со штангой задействуют практически все суставы и группы мышц.
- Симметрия движений. Использование снаряда для жима, приседаний подразумевает повторение одних и тех же действий. В результате слабые места тела «подтягиваются» без смещений и перекосов.
- Выработка анаболических гормонов. При увеличении мышечной массы активизируется синтез гормона роста и тестостерона.
Использование штанги во время тренировок может иметь и некоторые недостатки. В первую очередь это риск получения травм, особенно если атлет занимается в одиночку. Диапазон движений со снарядом ограничен одной плоскостью — вверх-вниз. Порой спортсмены выполняют жим асимметрично, что приводит к нарушению гармоничного развития мышечных групп.
https://youtube.com/watch?v=QxJpNHsM8lg
Изготовление лежака
Понадобится:
- Сталь листовая 2 мм.
- Болгарка.
- Рулетка.
- Петли дверные.
- Прут армирующий без ребер.
- Сварочный аппарат.
- Доска обрезная.
- Поролон.
- Прорезиненная ткань.
Тут придется совместить работу с металлом и деревом.
В самом начале вырезается 2 стальных листа — 35*16 и 35*94. 1-й фиксируется сварным швом сразу же на свое место в ногах, выступая всего на 1 см за пределы трубы.
Для фиксации 2-го потребуется стальная петля дверного типа, но изготовленная кустарным способом. Магазинные аналоги подойдут только в том случае, если изготавливались они для бронированных дверей. Петля приваривается одной плоскостью к трубе, а второй к стальной пластине.
С обратной стороны делается отступ 10 см, и подобным образом крепятся 2 безреберных прута арматуры длиной по 30 см — этот ход позволит приподнимать спинку для выполнения дополнительного ряда упражнений.
Теперь можно уложить сверху отшлифованную обрезную доску или ДСП, которая будет в каждую сторону выдаваться на 0,5 см (единственное исключение — место стыка 2-х пластин, там, наоборот, нужно срезать по 1 см). Все стыки дерева и металла фиксируются при помощи саморезов, причем таким образом, чтобы не пробить дерево.
Сверху укладывается поролон и закрывается прорезиненной тканью максимально доступной плотности.
Конечно приседания со штангой на плечах лучше всего выполнять в силовой раме, на которой можно как приседать, так и выполнять жим лежа, и некоторые другие упражнения. Но силовая рама довольно сложна для самостоятельного изготовления, и довольно дорога по материалам. К счастью, есть более простое решение этой проблемы.
Это простая, дешевая и прочная деревянная конструкция для приседов, которую нетрудно изготовить самому. Набор инструментов и материалов подбирается индивидуально, поэтому ваш список может отличаться от нашего. Первое, что нужно сделать – скрепить две стойки по три доски в каждой с помощью винтов. Высота стоек подбирается в зависимости от вашего роста. Самые низкие — внутренние доски, должны быть немного ниже уровня грифа, лежащего на ваших плечах, так, чтобы вы могли свободно поставить штангу на стойки. Высота оставшихся двух наружных досок должна быть немного выше первой. Они послужат опорой для штанги, лежащей на стойках.
Положите доски друг на друга, затяните винты с одной стороны, затем переверните, и сделайте то же самое с другой стороны. Теперь займемся более деликатной работой. Приготовьте два ведра. Поставьте в ведро приготовленную стойку, и залейте ее цементом. Не нужно заливать доверху, достаточно и половины. Убедитесь, что стойка со всех сторон стоит строго вертикально. Повторите эту процедуру с другой стойкой. В каждое ведро вмещается около примерно половина мешка цемента. Или 35 кг раствора. Как только цемент высохнет, вы получите две очень прочные, а главное очень дешевые стойки для приседаний.
Меры предосторожности. Как видите, в этой деревянной конструкции страховочные опоры не предусмотрены
Поэтому, если вы работаете «до отказа», желательно выполнять упражнения со страхующим помощником, который поможет вам подняться, если вы сами будете не в состоянии сделать это самостоятельно. Никогда не приседайте с весом, в котором вы не уверены. Закончив упражнение, не бросайте штангу на стойки, иначе они перевернутся. Будьте аккуратны и руководствуйтесь здравым смыслом.
Следует понимать, что всякие тонкости в вопросах изготовления тренажеров своими руками не так уж и важны. Главное уловить суть идеи, рассчитать размеры, определить пропорции и представить приблизительный внешний вид конструкции. В Интернете полно чертежей тренажеров для самостоятельного изготовления, которые получаются не хуже заводского производства. Но если вам достаточно лишь простейшего оборудования для домашних занятий, то такие сложные и дорогие варианты можно даже не рассматривать.
Еще варианты деревянных стоек




Деревянные стойки
Для всевозможных упражнений очень важна хорошая стойка для штанги: для приседаний с весом, сидя, подъема на носки, удержания тяжести и так далее. Для тех, кто не очень любит заниматься в спортивных залах, выполнять всевозможные упражнения становится проблематично. Главная проблема — стойка для штанги. Именно этого снаряда зачастую так не хватает, чтобы проводить эффективные домашние тренировки
Но если это так важно, то почему бы не сделать ее самостоятельно своими руками
Процесс сборки
После того, как вы определились с параметрами, которые будет иметь ваша скамья для жима своими руками, и подготовили все необходимые детали, можно приступать непосредственно к сборке тренажера.
Для начала следует установить в базовое положение станину и развернуть на девяносто градусов поперечину, расположенную на ее левой опоре. После этого необходимо приподнять правую часть станины и подвести под нее верхнюю перекладину стоек, чтобы два вертикально ориентированных болта в верхней половине станины вошли сверху в соответствующие им отверстия в перекладине. Затем следует нижнюю перекладину стоек прижать к нижней половине правой опоры станины, чтобы горизонтально ориентированный болт, выступающий из этой опоры, вошел в отверстие перекладины. Болт необходимо закрутить гайкой с приваренной на нее ручкой. Получается, что за счет верхних болтов стойки не будут прокручиваться в вертикальной плоскости, а за счет нижнего болта не будет происходить наклон стоек и подъем станины относительно них. Данный момент является чрезвычайно важным, так как при выполнении упражнения на разгибание ног на рычаге при максимальной нагрузке будет происходить перевешивание левой части, в результате чего стойки будут подниматься. В таких случаях пришлось бы прибегать к навешиванию дополнительных отягощений со стороны стоек.
Укладка скамьи на станину должна производиться таким образом, чтобы имеющиеся в крепежных уголках скамьи отверстия соотнеслись с отверстием, находящимся в верхней половине станины слева. Через все эти отверстия должен быть продет стержень из металла. Далее необходимо приподнять скамью с правой части и подвести под нее трубу из стали, концы которой укладываются на закрепленные с внутренней стороны стоек уголки. Данных уголков применяется две пары: нижняя предназначена для фиксации скамьи в строго горизонтальной ориентации, а верхняя – в наклонной. С правой стороны обеспечивается опора скамьи на трубу именно укрепленной посредством уголков частью. Нагрузка, создаваемая скамьей, направляется вниз, а при расположении под наклоном – еще и вправо, в результате чего труба зажимается стенками стоек с правой стороны, уголками – с нижней, а скамьей – с верхней. Таким образом, крепление получается невероятно надежным без применения каких-либо вспомогательных креплений.
Установка рычага на станину производится посредством одного болта, который проходит через отверстия, имеющиеся в специальных пластинах, расположенных в левой части станины, а также через отверстие, присутствующее в рычаге. Получается, что крепление стоек осуществляется лишь одной гайкой, оснащенной ручкой, скамьи – стержнем, рычага – болтом. Благодаря такой конструкции сборка и разборка тренажера займет считанные минуты и не потребует применения каких-либо инструментов.
Приседания с грифом
Универсальный тип нагрузки, который используют для качественной прокачки нижней части корпуса. Фокус нагрузки напрямую зависит от позиции нижних конечностей. Если стопы будут расположены максимально близко друг к другу, то нагрузка сместится на фронтальную часть бедра, если далеко — на внутреннюю.

Скрещенными руками поднять гриф к груди. Вариант идеален для работы с небольшим весом, кроме того, руки не скользят и кисти сильно не перегружаются, хотя эффективность для мышц огромная. Упражнения с кривым грифом в домашних условиях можно выполнять в том числе и по этой методике.
В исходном положении штанга должна лежать на плечах. Отвести ягодичные мышцы максимально назад, как при попытке сесть, после этого вернуться в исходное положение. Выполнить несколько подходов.
Для качественного выполнения лучше посмотреть фото упражнений с кривым грифом в домашних условиях. Это поможет избежать ошибок в процессе выполнения, травм и достичь максимального эффекта.
Первое, что приходит на ум неискушённому в бодибилдинге человеку при упоминании штанги, — прямой гриф. И не зря: такая конструкция представляется наиболее универсальной, надёжной и привычной. Но разновидностей грифов существует немало — они отличаются как по форме, так и по назначению. Одна из них — кривой гриф для штанги.



























